
Presented by

Olivier Haroche
Barcelona Yachting
Port Olimpic - Local 14
08005 Barcelona
Spain
Description
Auto translate:
Navisyo Homes 1.0 – Neuf – Version 2 cabines
Navisyo Homes 1.0 neuf, version 2 cabines, conforme aux normes européennes CE catégorie D8.
Prix HT. Prévoir en supplément 2 moteurs hors-bord de 15 CV.
3 unités disponibles immédiatement à ce prix exceptionnel et unique avant la sortie du prochain modèle.
Réveillez-vous chaque matin au bord de l’eau dans une habitation flottante moderne, lumineuse et confortable, conçue pour une vie à l’année ou en location saisonnière.
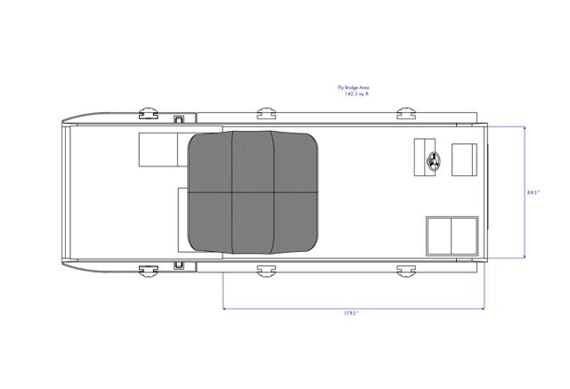
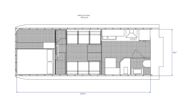
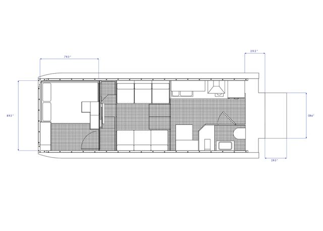
Le modèle Navisyo Home allie esthétique contemporaine et fonctionnalités marines dans une structure de 8,53 m de long pour 3 m de large, avec un tirant d’eau de 0,51 m.
Fabriquée en plastique renforcé de verre, cette unité offre un design optimisé pour l’habitabilité, la sécurité et la facilité d’entretien.
L’intérieur propose deux cabines spacieuses pouvant accueillir jusqu’à 6 personnes, avec option bureau et canapé convertible.
Le salon comprend une table pliante 6 places, sièges modulables, TV LED 32’’, système audio Bluetooth et climatisation réversible.
La cuisine est équipée d’un plan de travail en bois naturel, réfrigérateur-congélateur, plaque à induction, hotte, micro-ondes et rangements hauts et bas.
La salle de bain comprend un WC marin électrique avec broyeur, lavabo en céramique, douche avec receveur et paroi coulissante en verre trempé.
Les cabines disposent d’un lit double, rangements intégrés, armoires, connexions USB et prises universelles, éclairage LED et fenêtres Climalit.
La terrasse extérieure offre un espace repas avec table en teck, douche de pont, accès arrière avec marches en teck et bimini en option.
Le système électrique fonctionne en 120 V CA et 12/24 V CC, avec disjoncteur, prise de quai 50 A, batterie 60 Ah et éclairage LED complet.
La propulsion est assurée par deux moteurs hors-bord de 15 ou 20 CV, direction mécanique depuis la terrasse, avec deux réservoirs de 40 L chacun.
Plomberie : chauffe-eau 80 L, réservoir eaux grises 100 L, réservoir eaux noires 220 L.
Livraison possible en Europe.
Premiers modèles électriques avec propulsion verte, panneaux solaires et batteries disponibles en 2025.
En option : les Housses K-REN Protect, solution textile écologique, économique et durable qui protège votre coque du fouling.
Une housse sur mesure anti-UV qui évite le carénage annuel, réduit l’usure du bateau et protège l’environnement.
Contactez-moi pour plus d’informations ou une visite.
#Navisyo #NavisyoHomes #FloatingHome #Houseboat #HabitationFlottante #KRENProtect #BarcelonaYachting #InnovationNautique #EcoNautisme #BoatLife #VivreSurLEau #MarineDesign
EN
Navisyo Homes 1.0 – New – 2-Cabin Version
Brand new Navisyo Homes 1.0, 2-cabin version, compliant with European CE standards, Category D8.
Price ex-VAT. Add two 15 HP outboard engines.
3 units available immediately at this exceptional and unique price before the release of the next model.
Wake up every morning by the water in a modern, bright and comfortable floating home, designed for year-round living or seasonal rental.
The Navisyo Home combines contemporary aesthetics and marine functionality within a structure 8.53 m long and 3 m wide, with a draft of 0.51 m.
Built in fiberglass-reinforced plastic, this unit offers an optimized design for habitability, safety and easy maintenance.
The interior offers two spacious cabins accommodating up to 6 people, with an optional office and convertible sofa.
The salon includes a folding table for six, modular seating, 32’’ LED TV, Bluetooth audio system, and reversible air conditioning.
The kitchen is equipped with a natural wood countertop, fridge-freezer, induction hob, hood, microwave, and upper and lower storage cabinets.
The bathroom includes an electric marine toilet with macerator, ceramic sink, shower tray, and tempered-glass sliding partition.
The cabins feature double beds with integrated storage, wardrobes, USB ports and universal sockets, LED lighting and Climalit windows.
The exterior terrace offers a dining area with teak table, deck shower, aft access with teak steps, and optional bimini top.
The electrical system operates on 120 V AC and 12/24 V DC, with circuit breaker, 50 A shore plug, 60 Ah battery, and full LED lighting throughout.
Propulsion is provided by two 15 or 20 HP outboard engines, with mechanical steering from the terrace, and two 40 L fuel tanks.
Plumbing includes an 80 L water heater, 100 L grey-water tank, and 220 L black-water tank.
Delivery available across Europe.
First electric models with green propulsion, solar panels and batteries available in 2025.
Optional: K-REN Protect Covers, the eco-friendly, cost-effective and durable textile solution that protects your hull from fouling.
A custom-made UV-resistant cover that prevents annual antifouling, reduces boat wear and protects the marine environment.
Contact me for more information or to arrange a viewing.
#Navisyo #NavisyoHomes #FloatingHome #Houseboat #KRENProtect #BarcelonaYachting #MarineInnovation #EcoYachting #BoatLifestyle #WaterfrontLiving #SustainableDesign #ModernHouseboat
ES
Navisyo Homes 1.0 – Nuevo – Versión 2 cabinas
Navisyo Homes 1.0 nuevo, versión de 2 cabinas, conforme a las normas europeas CE categoría D8.
Precio sin IVA. Prever además 2 motores fueraborda de 15 CV.
3 unidades disponibles de inmediato a este precio excepcional y único antes del lanzamiento del próximo modelo.
Despiértate cada mañana junto al agua en una vivienda flotante moderna, luminosa y confortable, diseñada para vivir todo el año o para alquiler vacacional.
El modelo Navisyo Home combina estética contemporánea y funcionalidad marina en una estructura de 8,53 m de eslora y 3 m de manga, con calado de 0,51 m.
Construida en plástico reforzado con fibra de vidrio, esta unidad ofrece un diseño optimizado para la habitabilidad, la seguridad y el fácil mantenimiento.
El interior dispone de dos amplias cabinas con capacidad para hasta 6 personas, con opción de oficina y sofá convertible.
El salón incluye mesa plegable para seis personas, asientos modulares, televisor LED de 32”, sistema de audio Bluetooth y aire acondicionado reversible.
La cocina cuenta con encimera de madera natural, frigorífico-congelador, placa de inducción, campana extractora, microondas y armarios altos y bajos.
El baño está equipado con WC marino eléctrico con triturador, lavabo de cerámica, plato de ducha y mampara corredera de vidrio templado.
Las cabinas ofrecen cama doble con almacenamiento integrado, armarios, tomas USB y enchufes universales, iluminación LED y ventanas Climalit.
La terraza exterior ofrece zona de comedor con mesa de teca, ducha de cubierta, acceso trasero con escalones de teca y bimini opcional.
El sistema eléctrico funciona a 120 V CA y 12/24 V CC, con disyuntor, toma de puerto de 50 A, batería de 60 Ah y iluminación LED completa.
La propulsión se realiza mediante dos motores fueraborda de 15 o 20 CV, dirección mecánica desde la terraza y dos depósitos de combustible de 40 L cada uno.
Fontanería: calentador de agua de 80 L, depósito de aguas grises de 100 L y depósito de aguas negras de 220 L.
Entrega disponible en toda Europa.
Los primeros modelos eléctricos con propulsión verde, paneles solares y baterías estarán disponibles en 2025.
Opcional: Fundas K-REN Protect, solución textil ecológica, económica y duradera que protege el casco del fouling.
Funda a medida con protección anti-UV que evita el carenado anual, reduce el desgaste del barco y protege el medio ambiente.
Contáctame para más información o para concertar una visita.
#Navisyo #NavisyoHomes #CasaFlotante #Houseboat #KRENProtect #BarcelonaYachting #InnovaciónNáutica #NautismoSostenible #VidaEnElAgua #DiseñoMarino #EficienciaEcológica #VivirFlotando
Details
General information | |
---|---|
Make: | Navisyo |
Model: | Navisyo Homes 1.0 |
Year: | 2025 |
Condition: | Used |
Engine | |
Engine: | Hors Bord, 40 hp |
Measurements | |
Length: | 8.53 m (27.99 ft) |
Beam: | 3 m (9.84 ft) |
Deep: | 0.51 m (1.67 ft) |
Weight: | 5 kg (11.02 lb) |
Accommodation | |
Cabins: | 0 |
Berths: | 0 |